Textové stránky
cz
CZK
Zpět
TRITON 19" jednodílný rozvaděč 9U/400mm
Popis
Parametry
Hlídací pes
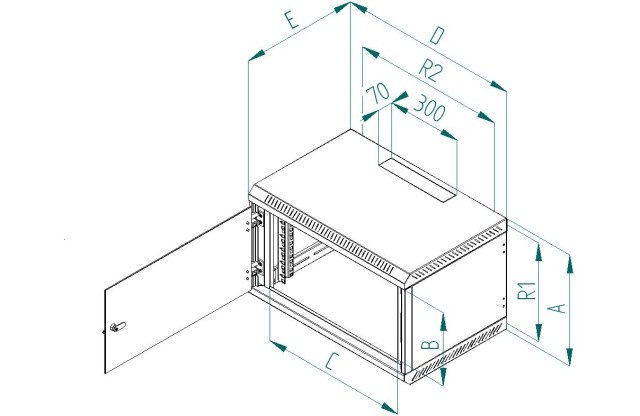
Rozvaděč Delta B je celosvařený nástěnný jednodílný rozvaděč s celoskleněnými dveřmi, které je možné díky masivním pantům otevřít pod úhlem téměř 180°. Důležitou součástí výrobku jsou otvory pro kabely, které jsou umístěny na horní a dolní stěně. Další dva otvory jsou umístěny na zadní stěně rozvaděče. Otvory jsou zaceleny vylamovacími záslepkami, které je možné vylomit s pomocí např. šroubováku. 19“ zařízení se instalují na vertikální lišty, které je možné plynule natavit podle potřeby do hloubky těla rozvaděče. Díky perforaci je zajištěna přirozená cirkulace vzduchu a chlazení komponentů. Přesné rozměry a další technické údaje jsou uvedeny níže (hodnoty R1 a R2 označují rozteče montážních otvorů pro zavěšení rozvaděče na zeď). Maximální zatížení rozvaděče je 30 kg. Rozměry: A – 500 mm B – 395 mm C – 490 mm D – 600 mm E – 395 mm R1 – 454 mm R2 – 420 mm Hmotnost – 17,4 kg Příbal: Klíč - přední dveře 2x Vrut 6x50 4x Podložka 6,6 4x Hmoždinka 10 4x Plastová podložka 8x Plovoucí matice M6 8x Šroub M6x16 8x Protiprachová záslepka 1x.
Typ datového rozvaděče:
Nástěnné 19"
Hloubka (mm):
400
Šířka (mm):
600
Výška rozvaděče (U):
9
Aktuální cena produktu je4579Kč
s dph




